- 2024阿里大文娱商业秋季云发布丨超级营销资源全景升级携品牌共拓生意新增量
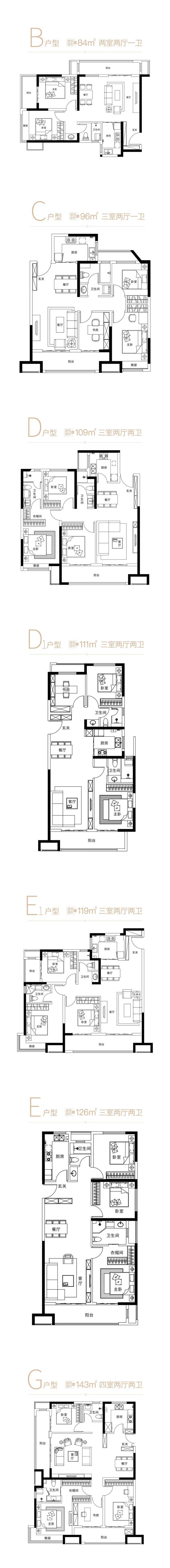
- 营销中心)华清园文津观澜丨品牌开发商丨产品介绍丨花园洋房
- 品牌产品在网上乱价销售如何处理(控价方案)
- 左右家居“C位”亮相中国品牌展以工匠精神创造文化之美
- 十年纽约时装周外籍劳模王陶携玖姿JUZUI盛开大秀承启中国高端女装品牌新未来
- 品牌首款纯电SUV!领克Z20发起申报:家族式设计别具一格
- 向美而生2024美仑品牌家族酒店投资峰会举行
- 中秋佳节海南面向广大学子推出专属优惠活动
- 第三十五届上海旅游节今晚开幕陈吉宁出席开幕活动
- 四川省第二届老年文化艺术节全民健身赛事活动报名火热进行中
邮箱:565142355@qq.com
手机:15891772836
电话:029-86751502
地址:陕西省西安市雁塔区朱雀大街融尚第十区8号楼301-01室
营销中心)华清园文津观澜丨品牌开发商丨产品介绍丨花园洋房
西咸新区沿承西安国际化大都市的空间结构,在新区形成“一河、两带、四轴、五组团”的空间结构。
一河: 渭河;两带:五陵塬遗址、周秦汉都城遗址;四轴:沿正阳大道拓展城市功能,对接西安钟楼南北线,构建大都市南北主轴带;以沣泾大道为轴带,对接大都市开发区经济发展带;以红光大道为轴带对接大都市东西主轴带,完善大都市发展格局; 以泾渭大道为轴带,连接秦咸阳宫与汉长安城遗址,构建大都市秦汉文化主轴带;五组团: 泾河新城、空港新城、秦汉新城、沣东新城和沣西新城。

在空间布局上,规划了沣东新城、沣西新城、秦汉新城、空港新城、泾河新城,构成“一区五城”的现代田园城市格局。
华清园•文津观澜就位于秦汉新城板块,是连接西安和咸阳的枢纽,距离北客站机场近,交通位置较好,也是连接空港经济区和高铁站经济区的纽带。

商业配套:项目自身有园区配套,后期也会有集中性商业和社区底商。项目西侧约1公里有大秦文明园地下商业广场,以“秦文化”为主题,打造及文化艺术中心、秦风情街、文化艺术体验区全方位的商业模式。
生态环境:项目南侧一路之隔紧邻的就是渭河生态景观带,全长18公里,整个渭河生态景区绿化面积约2.93万亩,水面面积4963亩,囊括河滩景观带,滨河大道景观带和绿色长廊景观带等。

交通方面:项目东临秦宫三路,西至秦宫二路,北临兰池三路,南至兰池大道。项目北侧紧邻地铁14号线,该线路北接机场,横贯秦汉新城,途经北客站最终到达港务区。离项目最近的站点是地铁14号线公里。项目周边还有多条公交线路,西咸39路),为业主的出行提供了极大的便利。与此同时,项目东侧2公里左右,秦汉收费站口的开通,也极大方便了项目到机场和市区的时间。
教育资源:项目分别位四期和六期设立幼儿园。除项目本身教育资源外,在项目北侧一路之隔是清华附中秦汉学校,是一所公办全日制寄宿制学校。项目西侧两公里是星河湾西交康桥学校,东侧约3公里有兰池学校(具体能上哪所学校要根据交房后有关部门划分为准)。


特别声明:以上内容(如有图片或视频亦包括在内)为自媒体平台“网易号”用户上传并发布,本平台仅提供信息存储服务。
国际黄金价格续创新高 足金饰品已冲到761元/克,有人9个月赚了10万元,接下来还能涨吗?
光大证券突发!投行大佬内幕交易:亏损532万元,被罚460万元,10年市场禁入!
北京香山论坛·高端访谈|上合组织副秘书长:上合组织积极应对新风险、新挑战
【资讯】2024年秋广东省小学数学教材分析活动(北师大版一年级上册专场)举办
-
2024-09-152024阿里大文娱商业秋季云发布丨超级营销资源全景升级携品牌共拓生意新增量
-
2024-09-15营销中心)华清园文津观澜丨品牌开发商丨产品介绍丨花园洋房
-
2024-09-15品牌产品在网上乱价销售如何处理(控价方案)
-
2024-09-14京东健康联合米内网发布业《本土医药品牌营销创新蓝皮书》引领行业转型升级
-
2024-09-14城市营销和热门综艺碰撞会产生怎样火花?抖音生活服务打开城市营销新思路
-
2024-09-14深圳湾公馆(售楼处电线售楼处地址-深圳湾公馆营销中心电话
